NESニーダーは比較的粘度の高い原料や、比重差の大きい原料の混練・捏和(ねっか)に適しています。
一般製造業接着剤・粘着剤・塗料・電池・電子部品・成型用粘土・窯業・製紙・建材・産廃処理・環境関連設備など 化学薬品火薬・医薬品(内服薬・湿布薬等)・歯磨き粉・石鹸・洗剤・化粧品など 食品白玉・餅・ガム・キャラメル・香辛料・調味料など |
|
ニーダーブレードの回転
NESニーダーは等速型と不等速型の2種類あります。
| 等速型 | 不等速型 |
|---|---|
Z型ブレードに多く用いられる方式で、中央集中混練タイプです。ニーダーブレードをオーバーラップさせ、さらに原料を槽の中心部に集める事で特に圧縮による混練・捏和効果が期待できます。 |
主にΣ型・S型ブレードに多く用いられる方式で、分散型混練タイプです。原料を槽の中心に集める高速ブレードと、原料を槽の壁面に押し付ける低速ブレードを組み合わせる事により原料が槽内で分散して、特に切断・展延による混練・捏和効果が期待できます。 |
![]() |
![]() |
ニーダーブレードの種類
ニーダーブレードには主に以下の6種類があります。
用途・目的をお伝えいただければ弊社で選定いたしますので、お気軽にお問い合わせください。
| Z型ブレード(等速用) | Σ型ブレード(不等速用) |
|---|---|
一般的に最も多く採用されているブレードです。原料を槽の中心部に集め圧縮させることにより、ムラなく均一に混練・捏和が行われます。Z型ブレードは当社独自の設計です。(※) |
Z型ブレードに比べ、原料の切断・展延に適しており、原料を分散させ混練・捏和します。Σ型ブレードは当社独自の設計です。(※) |
![]() |
![]() |
| S型ブレード(不等速用) | リーフ型ブレード(不等速用) |
原料を槽内で大きく往復運動させ、折りたたむことにより混練・捏和を行います。樹脂や繊維の混練・捏和に適しています。 |
原料を大きく動かすことにより混練・捏和を行います。プラスチックや樹脂の一部の混練・捏和に適しています。 |
![]() |
![]() |
| FT型ブレード(不等速用) | FT型フィッシュテールブレード(不等速用) |
Z型・Σ型ブレードでは共回りをして十分に混練・捏和できないような高粘度の原料を、圧縮(ヘラ練り)・展延して混練・捏和を行います。 |
原料を分散させ、弱い混練・捏和を行います。火薬類等の混練・捏和に多く採用されています。 |
![]() |
![]() |
※OEM製品(設計・製造・出荷検査を弊社に委託し、他社ブランドとして販売した製品)の一部で採用されている場合があります。
原料の排出方法
| 槽横転・反転式 |
ニーダールーダー |
|---|---|
手動または半自動のウォームギヤ等を用いて、槽を横転または反転させます。横転・反転角度は約95〜180度まで可能です。 |
|
| 槽底部排出式 | |
槽の底部にタンクボールバルブ等を設置し、バルブの開閉により排出を行います。バルブは手動開閉・自動開閉からお選びいただけます。 |
|
| 特殊スクリューによる押し出し式 | |
ニーダールーダー(三軸式ニーダー)の排出方法です。特殊スクリューによる押し出しです。 |
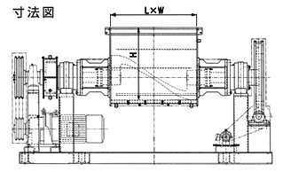
寸法表
下記の容量以外も製作いたします。お気軽にお問い合わせください。
| 全容量 (単位:L) |
仕込み容量 (単位:L) |
動力 (単位:kW) |
等速型 | 不等速型 | ||||
|---|---|---|---|---|---|---|---|---|
| 寸法(単位:mm) | 寸法(単位:mm) | |||||||
| L(巾) | W(奥行き) | H(深さ) | L(巾) | W(奥行き) | H(深さ) | |||
| 50(L) | 約30(L) | 2.2〜3.7(kW) | 450 | 370 | 396 | 460 | 420 | 315 |
| 100(L) | 約65(L) | 3.7〜11(kW) | 580 | 460 | 480 | 580 | 500 | 450 |
| 200(L) | 約140(L) | 5.5〜15(kW) | 740 | 590 | 580 | 750 | 620 | 550 |
| 300(L) | 約210(L) | 7.9〜18.5(kW) | 860 | 680 | 650 | 850 | 720 | 600 |
| 750(L) | 約500(L) | 11〜30(kW) | 1200 | 870 | 850 | 1200 | 980 | 760 |
| 1400(L) | 約1000(L) | 15〜55(kW) | 1300 | 1160 | 1060 | 1300 | 1280 | 980 |
| 2000(L) | 約1400(L) | 22〜75(kW) | 1500 | 1330 | 1150 | 1500 | 1380 | 1120 |
| 3000(L) | 約2100(L) | 37〜110(kW) | 1700 | 1550 | 1200 | 1700 | 1560 | 1210 |
※上記寸法は標準的な寸法です、仕様により変更する場合があります。
![]() |
![]() |
小型ニーダー
少量生産や実験に適した全容量0.7L(700cc)〜50L程度の小型ニーダーも製作しています。 |
![]() |

















